LIBERTAD ESQUINA ALMIRANTE BROWN (NE)
Casa en PA de 3 dormitorios, terraza, lavadero cubierto, baño,…
Solares de Paucke, Municipio de Santo Tomé, Departamento La Capital, Argentina
Venta







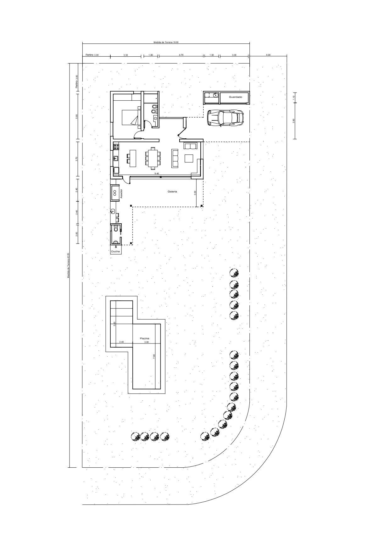
Guastavino e Imbert y Cia. vende terreno en calle principal del nuevo loteo «Solares de Paucke». El mismo cuenta con 43.50m de Frente, por 18m de fonndo, comprendiendo una superficie de 785m2 aproximados. Se encuentra en ochava, de facil acceso. Anteproyecto de propiedad de 70m2 y piscina.
Casa en PA de 3 dormitorios, terraza, lavadero cubierto, baño,…
Planta Baja: Jardín, living, patio de luz, estar comedor, cocina…
O.Gelabert 3241 Cochera Nº 11